Főmenü:
Földszintes házak
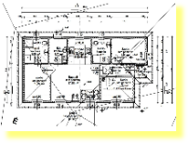
A ház az Őrség szélén, jó levegőjű csendes és nyugodt környezetben épül energiatakarékos készház szerkezettel. Az eredeti rajz módosítása után a 12 négyzetméteres terasz is tetőt kapott. A ház hasznos alapterülete terasz nélkül 74 négyzetméter. A ház építés közben megtekinthető.
A sárga árnyékkal kiemelt képek felugró ablakként működnek.
Jobb oldalon az építész alaprajz, a bal oldalon a tényleges beállítás látható. Apróbb módosítások az építtető kérésére történtek. A házról alaprajzi változat is készült Zita néven.
Nézeti rajzok:






